Living in a modern apartment above a business has become a smart choice for urban dwellers. Combining work and living in one building saves time and money while creating a practical lifestyle. Whether you are a business owner or a renter, this type of design is highly efficient. Small apartment above business floor plan ideas help you maximize space while still enjoying modern comforts.
In the United States, city zoning often supports mixed-use buildings. These apartments not only create extra income but also provide a unique living experience. With efficient modern apartment floor plans for the above business units, residents can enjoy convenience, security, and a stylish urban lifestyle. You can even incorporate a loft or balcony for more flexibility.
2. Benefits of an Apartment Above a Business
Owning or renting an apartment above business space gives multiple benefits. Property owners can earn extra rental income while still operating a business below. Tenants enjoy close proximity to work, shops, or offices. In addition, these apartments often sit in busy areas, giving residents access to restaurants, cafes, and public transport. Multi-use floor plans combining business and living space make life more efficient.
Another advantage is the potential for investment growth. Cities in the USA value mixed-use properties because they make better use of land. Residents enjoy urban lifestyle advantages, including walkability, shorter commutes, and community engagement. With the right design, these apartments can feel modern, stylish, and cozy at once.
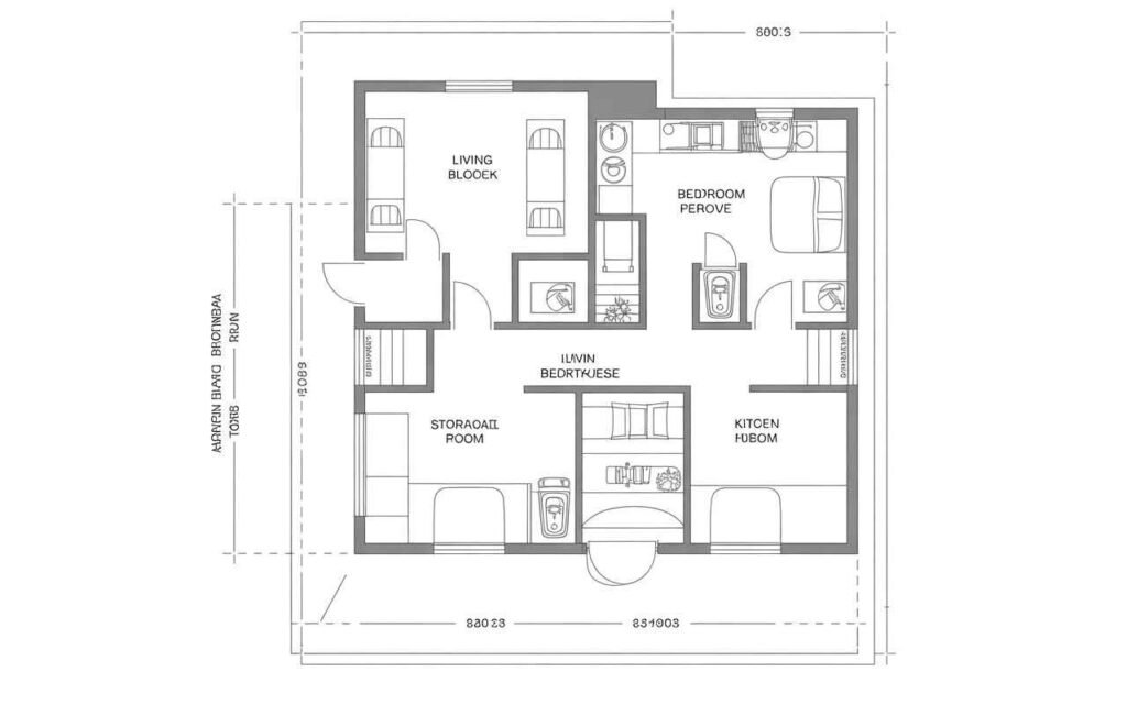
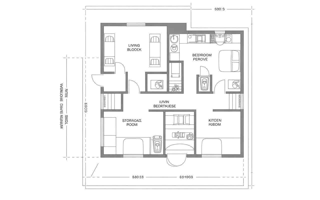
3. Types of Apartment Floor Plans Above Businesses
Small apartments above business floor plans are perfect for singles or couples. They are cozy, functional, and can be designed to maximize every square foot. Modern apartment above business design plans focus on sleek layouts with open living spaces and natural light. These layouts often feature compact kitchens and living areas that feel larger than they are.
For those who want vertical space, an apartment above a business floor plan with loft space offers creative solutions. Loft areas can serve as bedrooms, workspaces, or storage. Loft apartment ideas for above office or retail space include open lofts with modern railings, skylights, or mezzanine levels that make the apartment feel spacious and airy.
4. Garage Apartment Floor Plans

A 1-bedroom garage apartment floor plan offers a compact, affordable living solution. These apartments are ideal for single tenants or couples. Compact 1-bedroom garage apartment layouts accommodate a living room, kitchen, and bathroom in a small footprint, making them ideal for urban areas.
For families or roommates, a 2-bedroom apartment above a business layout is better. These apartments provide separate bedrooms and a living space that feels roomy despite limited square footage. Adding a balcony can improve livability. Garage apartment plans with balcony features give residents outdoor space without needing a yard. Garage apartments with a balcony for outdoor space are highly desirable in cities.
5. Design Considerations
When designing an apartment above a business, structural safety is critical. Load-bearing walls, zoning codes, and fire safety regulations must be considered. Privacy and noise control between the commercial and residential areas is also important. Proper insulation, soundproofing, and layout design help maintain residents’ comfort.
Lighting and ventilation play a major role in apartment quality. Modern garage apartment floor plans for urban areas often use large windows, skylights, and airflow systems. Smart use of space includes multi-functional furniture and compact storage. Amenities such as in-unit laundry, kitchen islands, and lofted storage can make small apartments highly livable.
6. Tips for Maximizing Functionality
Efficiency is key in apartments above businesses. Open-plan layouts save space and make apartments feel larger. Multi-purpose furniture, such as sofa beds or foldable tables, adds flexibility. Loft areas can serve as bedrooms or workspaces, allowing small apartments to meet multiple needs.
Separate entrances can improve privacy for both residents and businesses. Creative storage solutions such as wall shelves, under-stair drawers, and mezzanine lofts help maximize space. Stylish loft apartment plans above retail or office space can include skylights or glass partitions to enhance the feel of openness. With careful planning, these apartments can be both practical and attractive.
7. Cost and Construction Insights
Building an apartment above a business floor plan requires balancing budget and style. Budget-friendly options focus on functional layouts with affordable materials, while luxury designs incorporate high-end finishes and modern fixtures. Material durability is important to withstand daily use.
Hiring an architect is recommended for customized layouts, though pre-designed plans are available for faster construction. Costs vary based on location, size, and materials. A table below shows estimated costs for US cities:
| Apartment Type | Size (sq ft) | Estimated Cost (USD) | Features |
|---|---|---|---|
| 1 Bedroom Garage | 400–600 | 80,000–120,000 | Compact layout, efficient storage |
| 2 Bedroom Above Business | 700–900 | 150,000–220,000 | Spacious layout, balcony options |
| Loft Apartment | 600–800 | 130,000–200,000 | Mezzanine, open plan, modern finishes |
8. Case Studies / Examples
Many US cities have successful examples of apartments above commercial units. In New York, small shops often have an apartment above the business floor plan with loft space, giving young professionals a modern and convenient home. Chicago features a spacious 2-bedroom apartment above the shop design, combining rental income for owners with comfortable living for tenants.
Other cities, such as Los Angeles and Austin, showcase garage apartment plans for small lots, where homeowners can create income-generating units above garages or retail spaces. Affordable garage apartment plans for rental income are gaining popularity, especially in urban neighborhoods. Visual sketches of floor plans often help investors and architects plan these multi-use spaces.
9. Conclusion
Living in an apartment above a business floor plan combines convenience, modern style, and investment potential. With proper design, you can maximize space, incorporate lofts or balconies, and create a home that suits your lifestyle. Whether you are a business owner or renter, these apartments offer a smart solution for urban living.
Exploring the best 1-bedroom apartment layouts above commercial property or stylish loft apartment plans above retail or office space can help you make informed design decisions. The right floor plan transforms a simple space into a functional, stylish, and profitable home.
